Este site utiliza cookies para permitir a mudança de língua e o armazenamento dos seus imóveis favoritos. Ao utilizar este site, concorda que o mesmo utilize cookies.

Apartamento T3 com 3 Suítes, Jardim Privativo e Terraço

625.000€



Referência

CB06-54.2 (2)

Natureza

Venda

Tipo de Imóvel

Apartamento

Subtipo de Imóvel

Flat

Tipologia

T3

Estado

Excelente

Certificado energético

A

Ano

2027


Distrito

Porto

Concelho

Porto

Freguesia

Paranhos

Código Postal

4250


Área Útil

65.62 m2

Área Bruta

152 m2

Área de Terreno

0 m2

Partilhar




Contactar Imobiliária

*Preenchimento obrigatório
Ao clicar em 'Enviar', declara que aceita a nossa Política de Privacidade.
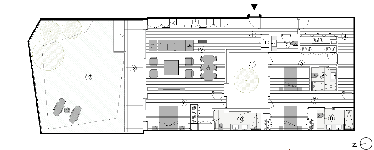
Apartamento T3 com 3 Suítes, Jardim Privativo e Terraço – Exclusividade e Conforto

Apresentamos este amplo e sofisticado apartamento T3, localizado no Piso 1 (Fração B), com uma generosa área bruta de 152 m², ideal para quem procura conforto, privacidade e espaços exteriores de excelência.

A zona social destaca-se por uma espaçosa sala em open space com cozinha, com cerca de 42 m², perfeita para momentos de convívio e lazer. Este espaço beneficia de uma excelente ligação ao exterior, proporcionando grande luminosidade natural e uma agradável continuidade entre interior e exterior.

Na zona privada, o imóvel oferece um conceito diferenciador: três suítes, todas com casa de banho privativa, garantindo total conforto e independência para toda a família ou convidados. Existe ainda uma casa de banho de serviço de apoio à zona social.

O apartamento conta também com uma circulação bem organizada e um átrio de entrada amplo, que reforça a sensação de espaço e funcionalidade.

No exterior, destaca-se pelos seus generosos espaços privados: um pátio acolhedor, um jardim com mais de 70 m² e ainda um terraço, ideais para desfrutar de momentos ao ar livre com total privacidade.

Finalizado no primeiro trimestre de 2027 

Principais áreas:

Sala/Cozinha: 41,68 m²
Suíte 1: 15,38 m²
Suíte 2: 15,64 m²
Suíte 3: 15,78 m²
Jardim: 71,75 m²
Terraço: 14,63 m²

Uma solução perfeita para quem valoriza qualidade de vida, áreas amplas e um imóvel único com características exclusivas.
Geral
CaixilhariaDupla:Sim
VistasCidade:Sim
Quarto de BanhoPróprio:Sim
Luz NaturalIluminado:Sim
Fuga de FumosChaminé mecânica:Sim
InfraestruturasEsgotos:Sim
GeraisNº de Casas de Banho:1
GeraisNº de Terraços:1
GeraisArmário de roupa / closet:Sim
GeraisAdaptado a mobilidade reduzida:Sim
GeraisRecomendado para crianças:Sim
CozinhaExaustor:Sim
PavimentoCerâmica:Sim
ClimatizaçãoBomba de calor:Sim
Edificio
GeraisNº de Varandas:1
GeraisPermite animais:Sim
GeraisAcesso mobilidade reduzida:Sim
Tipo de EmpreendimentoHabitação:Sim
IsolamentoTérmico:Sim
ÁguaCompanhia:Sim
Zona
GeraisAuto-Estrada:Sim
GeraisMetro:Sim
GeraisTransportes públicos:Sim
CentralidadeCentro da cidade:Sim
ProximidadeBancos:Sim
ProximidadeBombeiros:Sim
ProximidadeCentros comerciais:Sim
ProximidadeClínicas:Sim
ProximidadeEscolas:Sim
ProximidadeFarmácias:Sim
ProximidadeGinásios:Sim
ProximidadeHospitais:Sim
ProximidadeJardins:Sim
ProximidadeJardins de infância:Sim
ProximidadePadarias:Sim
ProximidadePolícia:Sim
ProximidadeServiços públicos:Sim
ProximidadeSupermercados:Sim
AcessosAlcatrão:Sim
AcessosCalçada:Sim

Este imóvel não tem áreas definidas.

Imóveis
Semelhantes

Apartamento
Venda

275.000€

Apartamento T1 – Rua da Constituição | Porto...

275.000€

Porto / Porto / Bonfim


Ref: CB06-53

Ref: CB06-53

30 m2

1

1

Apartamento
Venda

550.000€

Apartamento T3 Moderno com Suíte

550.000€

Porto / Porto / Paranhos


Ref: CB06-54.3 (2)

Ref: CB06-54.3 (2)

100 m2

3

1

Apartamento
Venda

230.000€

Apartamento T0 Novo inserido no Edifício Bonf...

230.000€

Porto / Porto / Bonfim


Ref: CB02-168-B (2) (2) (2)

Ref: CB02-168-B (2) (2) (2)

42 m2

1