Este site utiliza cookies para permitir a mudança de língua e o armazenamento dos seus imóveis favoritos. Ao utilizar este site, concorda que o mesmo utilize cookies.

Apartamento T3 Moderno com Suíte

550.000€



Referência

CB06-54.3 (2)

Natureza

Venda

Tipo de Imóvel

Apartamento

Subtipo de Imóvel

Flat

Tipologia

T3

Estado

Excelente

Certificado energético

A

Ano

2027


Distrito

Porto

Concelho

Porto

Freguesia

Paranhos

Código Postal

4250


Área Útil

100 m2

Área Bruta

124 m2

Área de Terreno

0 m2

Partilhar




Contactar Imobiliária

*Preenchimento obrigatório
Ao clicar em 'Enviar', declara que aceita a nossa Política de Privacidade.
Apartamento T3 Moderno com Suíte e Amplas Áreas – Conforto e Funcionalidade

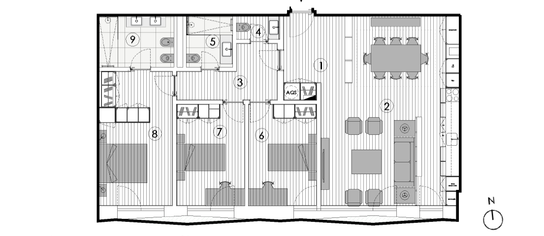
Apresentamos este elegante apartamento T3, localizado no Piso 2 (Fração S), com uma área bruta de 124 m², ideal para famílias que procuram conforto, boa distribuição de espaços e funcionalidade no dia a dia.

A zona social é composta por uma ampla sala e cozinha em open space com cerca de 41 m², proporcionando um ambiente moderno, luminoso e perfeito para convívio. A disposição do espaço permite uma clara separação entre zona de estar e de refeições, mantendo a fluidez do ambiente.

Na zona privada, o imóvel dispõe de três quartos, sendo um deles uma confortável suíte com casa de banho privativa. Os dois quartos adicionais são apoiados por uma casa de banho completa, existindo ainda uma casa de banho de serviço, garantindo maior comodidade para toda a família.

A distribuição inclui também um átrio de entrada acolhedor e uma zona de circulação bem organizada, contribuindo para a funcionalidade e conforto do apartamento.

Finalizado no primeiro semestre de 2027

Principais áreas:

Sala/Cozinha: 41,52 m²
Suíte: 16,83 m²
Quartos: 11,96 m² cada
I.S. Suíte: 6,08 m²

Uma excelente opção para quem procura um apartamento moderno, com boas áreas e uma organização prática dos espaços.
Geral
CaixilhariaDupla:Sim
VistasCidade:Sim
Quarto de BanhoPróprio:Sim
Luz NaturalIluminado:Sim
Fuga de FumosChaminé mecânica:Sim
InfraestruturasEsgotos:Sim
GeraisNº de Casas de Banho:1
GeraisNº de Terraços:1
GeraisArmário de roupa / closet:Sim
GeraisAdaptado a mobilidade reduzida:Sim
GeraisRecomendado para crianças:Sim
CozinhaExaustor:Sim
PavimentoCerâmica:Sim
ClimatizaçãoBomba de calor:Sim
Edificio
GeraisNº de Varandas:1
GeraisPermite animais:Sim
GeraisAcesso mobilidade reduzida:Sim
Tipo de EmpreendimentoHabitação:Sim
IsolamentoTérmico:Sim
ÁguaCompanhia:Sim
Zona
GeraisAuto-Estrada:Sim
GeraisMetro:Sim
GeraisTransportes públicos:Sim
CentralidadeCentro da cidade:Sim
ProximidadeBancos:Sim
ProximidadeBombeiros:Sim
ProximidadeCentros comerciais:Sim
ProximidadeClínicas:Sim
ProximidadeEscolas:Sim
ProximidadeFarmácias:Sim
ProximidadeGinásios:Sim
ProximidadeHospitais:Sim
ProximidadeJardins:Sim
ProximidadeJardins de infância:Sim
ProximidadePadarias:Sim
ProximidadePolícia:Sim
ProximidadeServiços públicos:Sim
ProximidadeSupermercados:Sim
AcessosAlcatrão:Sim
AcessosCalçada:Sim

Este imóvel não tem áreas definidas.

Imóveis
Semelhantes

Apartamento
Venda

524.000€

Vende-se Apartamento T3 - Boss Gardens - Port...

524.000€

Porto / Porto / Paranhos


Ref: CB04-21(2) (2) (2) (2)

Ref: CB04-21(2) (2) (2) (2)

109 m2

3

3

Sim

Apartamento
Venda

230.000€

Apartamento T0 Novo inserido no Edifício Bonf...

230.000€

Porto / Porto / Bonfim


Ref: CB02-168-B (2) (2) (2)

Ref: CB02-168-B (2) (2) (2)

42 m2

1

Apartamento
Venda

650.000€

Apartamento T3 Exclusivo com 3 Suítes e Jardi...

650.000€

Porto / Porto / Paranhos


Ref: CB06-54.4 (2)

Ref: CB06-54.4 (2)

140 m2

3

1