Este site utiliza cookies para permitir a mudança de língua e o armazenamento dos seus imóveis favoritos. Ao utilizar este site, concorda que o mesmo utilize cookies.

Apartamento T3 Exclusivo com 3 Suítes e Jardim Privativo de Grandes Dimensões

650.000€



Referência

CB06-54.4 (2)

Natureza

Venda

Tipo de Imóvel

Apartamento

Subtipo de Imóvel

Flat

Tipologia

T3

Estado

Excelente

Certificado energético

A

Ano

2027


Distrito

Porto

Concelho

Porto

Freguesia

Paranhos

Código Postal

4250


Área Útil

140 m2

Área Bruta

152 m2

Área de Terreno

153 m2

Partilhar




Contactar Imobiliária

*Preenchimento obrigatório
Ao clicar em 'Enviar', declara que aceita a nossa Política de Privacidade.
Apartamento T3 Exclusivo com 3 Suítes e Jardim Privativo de Grandes Dimensões

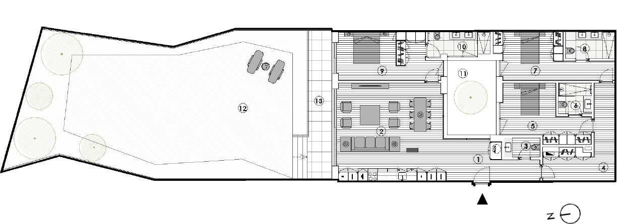
Apresentamos este distinto apartamento T3, localizado no Piso 1 (Fração E), com uma generosa área bruta de 152 m², ideal para quem procura um imóvel com elevado nível de conforto, privacidade e espaços exteriores verdadeiramente diferenciadores.

A zona social desenvolve-se num amplo espaço em open space, com sala e cozinha totalizando cerca de 42 m², concebido para proporcionar um ambiente moderno, funcional e com excelente luminosidade natural. A ligação direta ao exterior reforça a sensação de amplitude e integração com o espaço exterior.

Na zona privada, o imóvel destaca-se pelo seu conceito exclusivo de três suítes, todas com casa de banho privativa, garantindo máximo conforto e independência para toda a família ou convidados. Dispõe ainda de uma casa de banho de serviço de apoio à zona social.

O apartamento conta com um átrio de entrada espaçoso e uma circulação bem definida, assegurando uma organização prática e fluida entre as diferentes áreas.

No exterior, encontra-se um dos grandes destaques desta fração: um extraordinário jardim privativo com mais de 150 m², complementado por um pátio e um terraço, oferecendo um espaço único para lazer, convívio e momentos ao ar livre com total privacidade.

Finalizado no primeiro trimestre de 2027

Principais áreas:

Sala/Cozinha: 41,78 m²
Suítes: entre 15,38 m² e 15,78 m²
Jardim: 153,91 m²
Terraço: 14,67 m²

Uma oportunidade rara para quem valoriza espaço, exclusividade e uma forte ligação ao exterior, num apartamento de características únicas

CASABELO - Mediação Imobiliária
ID do Imóvel: CB06-54.4
AMI 24770
www.casabelo.pt
Av. Dr. Germano Vieira 1108, Gueifães, Maia

Autógrafos Diários Lda
Intermediário de Crédito Vinculado nº 0007133 registado no Banco de Portugal.

CASABELO – Mediação Imobiliária (AMI 24770)
Somos uma imobiliária sediada na Maia, especializada na compra e venda de imóveis no Grande Porto: Maia, Porto, Matosinhos, Vila Nova de Gaia, Gondomar, Trofa e arredores.

A nossa equipa garante um acompanhamento próximo, transparente e profissional em todo o processo de compra, venda ou arrendamento, bem como no acesso ao crédito habitação através da nossa intermediação de crédito (serviço gratuito para o cliente).

Se procura uma imobiliária de confiança na Maia e no Porto, contacte a CASABELO. Transformamos planos em realidade.
Geral
CaixilhariaDupla:Sim
VistasCidade:Sim
Quarto de BanhoPróprio:Sim
Luz NaturalIluminado:Sim
Fuga de FumosChaminé mecânica:Sim
InfraestruturasEsgotos:Sim
GeraisNº de Casas de Banho:1
GeraisNº de Terraços:1
GeraisArmário de roupa / closet:Sim
GeraisAdaptado a mobilidade reduzida:Sim
GeraisRecomendado para crianças:Sim
CozinhaExaustor:Sim
PavimentoCerâmica:Sim
ClimatizaçãoBomba de calor:Sim
Edificio
GeraisNº de Varandas:1
GeraisPermite animais:Sim
GeraisAcesso mobilidade reduzida:Sim
Tipo de EmpreendimentoHabitação:Sim
IsolamentoTérmico:Sim
ÁguaCompanhia:Sim
Zona
GeraisAuto-Estrada:Sim
GeraisMetro:Sim
GeraisTransportes públicos:Sim
CentralidadeCentro da cidade:Sim
ProximidadeBancos:Sim
ProximidadeBombeiros:Sim
ProximidadeCentros comerciais:Sim
ProximidadeClínicas:Sim
ProximidadeEscolas:Sim
ProximidadeFarmácias:Sim
ProximidadeGinásios:Sim
ProximidadeHospitais:Sim
ProximidadeJardins:Sim
ProximidadeJardins de infância:Sim
ProximidadePadarias:Sim
ProximidadePolícia:Sim
ProximidadeServiços públicos:Sim
ProximidadeSupermercados:Sim
AcessosAlcatrão:Sim
AcessosCalçada:Sim

Este imóvel não tem áreas definidas.

Imóveis
Semelhantes

Apartamento
Venda

415.000€

1º Andar T4 com terraço + moradia de R/C e Ca...

415.000€

Porto / Porto / Campanhã


Ref: CB06-39. (2)

Ref: CB06-39. (2)

427 m2

6

3

Sim

Apartamento
Venda

220.000€

Apartamento T0 Novo inserido no Edifício Bonf...

220.000€

Porto / Porto / Bonfim


Ref: CB02-168-D (2) (2) (2)

Ref: CB02-168-D (2) (2) (2)

43 m2

1

Apartamento
Venda

230.000€

Apartamento T0 Novo inserido no Edifício Bonf...

230.000€

Porto / Porto / Bonfim


Ref: CB02-168-B (2) (2) (2)

Ref: CB02-168-B (2) (2) (2)

42 m2

1