Este site utiliza cookies para permitir a mudança de língua e o armazenamento dos seus imóveis favoritos. Ao utilizar este site, concorda que o mesmo utilize cookies.

Apartamento T2 na Rua São Dinis

510.000€



Referência

CB06-54 (2)

Natureza

Venda

Tipo de Imóvel

Apartamento

Subtipo de Imóvel

Flat

Tipologia

T2

Estado

Excelente

Certificado energético

A

Ano

2027


Distrito

Porto

Concelho

Porto

Freguesia

Paranhos

Código Postal

4250


Área Útil

57.04 m2

Área Bruta

128 m2

Área de Terreno

0 m2

Partilhar




Contactar Imobiliária

*Preenchimento obrigatório
Ao clicar em 'Enviar', declara que aceita a nossa Política de Privacidade.
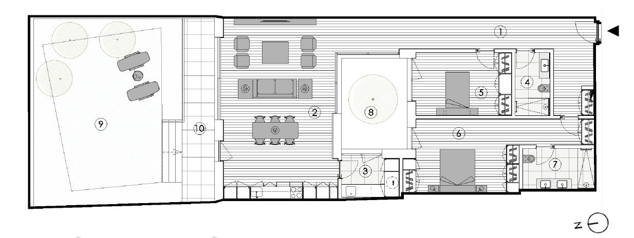
Apartamento T2 com Jardim e Terraço – Excelente Distribuição e Espaços Exteriores

Apresentamos este moderno apartamento T2, situado no Piso 1 (Fração A), com uma área bruta de 128 m², pensado para proporcionar conforto, funcionalidade e uma excelente ligação entre interior e exterior.

A zona social destaca-se por uma ampla sala em open space com cozinha, com cerca de 45 m², ideal para convívio e momentos em família. Este espaço beneficia de acesso direto ao exterior, proporcionando excelente luminosidade natural.

Na zona privada, o imóvel dispõe de dois quartos, sendo um deles uma confortável suíte com casa de banho privativa. O segundo quarto é apoiado por uma casa de banho completa adicional. Ambos os quartos apresentam áreas generosas e boa organização.

Conta ainda com lavandaria independente, zona de circulação funcional e bem distribuída.

No exterior, este apartamento diferencia-se pelos seus espaços únicos: um agradável pátio, um jardim privativo com mais de 58 m² e ainda um terraço, perfeitos para lazer, refeições ao ar livre ou simplesmente relaxar.

Finalizados no primeiro trimestre de 2027

Principais áreas:

Sala/Cozinha: 44,85 m²
Suíte: 19,53 m²
Quarto: 13,25 m²
Jardim: 58,21 m²
Terraço: 12,75 m²

Uma excelente oportunidade para quem procura conforto, espaço exterior e qualidade de vida.

CASABELO - Mediação Imobiliária
ID do Imóvel: CB06-54
AMI 24770
www.casabelo.pt
Av. Dr. Germano Vieira 1108, Gueifães, Maia

Autógrafos Diários Lda
Intermediário de Crédito Vinculado nº 0007133 registado no Banco de Portugal.

CASABELO – Mediação Imobiliária (AMI 24770)
Somos uma imobiliária sediada na Maia, especializada na compra e venda de imóveis no Grande Porto: Maia, Porto, Matosinhos, Vila Nova de Gaia, Gondomar, Trofa e arredores.

A nossa equipa garante um acompanhamento próximo, transparente e profissional em todo o processo de compra, venda ou arrendamento, bem como no acesso ao crédito habitação através da nossa intermediação de crédito (serviço gratuito para o cliente).

Se procura uma imobiliária de confiança na Maia e no Porto, contacte a CASABELO. Transformamos planos em realidade.
Geral
CaixilhariaDupla:Sim
VistasCidade:Sim
Quarto de BanhoPróprio:Sim
Luz NaturalIluminado:Sim
Fuga de FumosChaminé mecânica:Sim
InfraestruturasEsgotos:Sim
GeraisNº de Casas de Banho:1
GeraisNº de Terraços:1
GeraisArmário de roupa / closet:Sim
GeraisAdaptado a mobilidade reduzida:Sim
GeraisRecomendado para crianças:Sim
CozinhaExaustor:Sim
PavimentoCerâmica:Sim
ClimatizaçãoBomba de calor:Sim
Edificio
GeraisNº de Varandas:1
GeraisPermite animais:Sim
GeraisAcesso mobilidade reduzida:Sim
Tipo de EmpreendimentoHabitação:Sim
IsolamentoTérmico:Sim
ÁguaCompanhia:Sim
Zona
GeraisAuto-Estrada:Sim
GeraisMetro:Sim
GeraisTransportes públicos:Sim
CentralidadeCentro da cidade:Sim
ProximidadeBancos:Sim
ProximidadeBombeiros:Sim
ProximidadeCentros comerciais:Sim
ProximidadeClínicas:Sim
ProximidadeEscolas:Sim
ProximidadeFarmácias:Sim
ProximidadeGinásios:Sim
ProximidadeHospitais:Sim
ProximidadeJardins:Sim
ProximidadeJardins de infância:Sim
ProximidadePadarias:Sim
ProximidadePolícia:Sim
ProximidadeServiços públicos:Sim
ProximidadeSupermercados:Sim
AcessosAlcatrão:Sim
AcessosCalçada:Sim

Este imóvel não tem áreas definidas.

Imóveis
Semelhantes

Apartamento
Venda

180.000€

Vende-se T0 Em Zona Central - Porto

180.000€

Porto / Porto / Bonfim


Ref: CB12-14. (2) (2) (2) (2)

Ref: CB12-14. (2) (2) (2) (2)

45 m2

1

Apartamento
Venda

389.000€

Apartamento T2 totalmente renovada com jardim...

389.000€

Porto / Porto / Cedofeita, Ildefonso, Sé, Miragaia, Nicolau, Vitória


Ref: CB02-169 (2) (2) (2) (2) (2) (

Ref: CB02-169 (2) (2) (2) (2) (2) (

104 m2

2

2

Apartamento
Venda

380.000€

Apartamento T3 Remodelado Em Ramalde - Porto

380.000€

Porto / Porto / Ramalde


Ref: CB04-50

Ref: CB04-50

115 m2

3

2