Este site utiliza cookies para permitir a mudança de língua e o armazenamento dos seus imóveis favoritos. Ao utilizar este site, concorda que o mesmo utilize cookies.

Vende-se Loja para converter em apartamento no Porto

190.000€



Referência

CB04-ARCH-1 (2)

Natureza

Venda

Tipo de Imóvel

Apartamento

Tipologia

T2

Estado

Usado

Certificado energético

B

Ano

1988


Distrito

Porto

Concelho

Porto

Freguesia

Lordelo do Ouro e Massarelos

Código Postal

4150


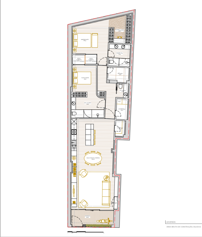
Área Útil

145 m2

Área Bruta

152.4 m2

Área de Terreno

160 m2

Partilhar




Contactar Imobiliária

*Preenchimento obrigatório
Ao clicar em 'Enviar', declara que aceita a nossa Política de Privacidade.
- Vende-se Loja para converter em apartamento, com 152m², no Porto, com as seguintes características: 

✅ Área privativa: 145m²;
✅ Projeto aprovado para apartamento T2 com 2 suites;
✅ Espaço versátil com áreas muito generosas;
✅ Ótima oportunidade de investimento, adaptável às suas necessidades

- Não perca esta oportunidade! Entre em contacto para mais informações.

CASABELO - Mediação Imobiliária
ID do Imóvel: CB04-ARCH-1
AMI: 24770
www.casabelo.pt
Av. Dr. Germano Vieira 1108, Gueifães, Maia

Autógrafos Diários Lda
Intermediário de Crédito Vinculado nº 0007133 registado no Banco de Portugal
Geral
GeraisRés do chão:Sim
GeraisNº de Divisões :3
GeraisNº de Casas de Banho:3
GeraisNº de Terraços:1
GeraisNº de Marquises:1
ClimatizaçãoAr condicionado:Sim
VistasCidade:Sim
Quarto de BanhoPróprio:Sim
InfraestruturasEsgotos:Sim
Edificio
Tipo de EmpreendimentoLojas:Sim
ÁguaCompanhia:Sim
GeraisPermite animais:Sim
GeraisAcesso mobilidade reduzida:Sim
Zona
GeraisTransportes públicos:Sim
CentralidadeCentro da cidade:Sim
ProximidadeBancos:Sim
ProximidadeClínicas:Sim
ProximidadeEscolas:Sim
ProximidadeFarmácias:Sim
ProximidadeGinásios:Sim
ProximidadeJardins:Sim
ProximidadePadarias:Sim
ProximidadePolícia:Sim
ProximidadeServiços públicos:Sim
ProximidadeSupermercados:Sim
AcessosCalçada:Sim

Este imóvel não tem áreas definidas.

Imóveis
Semelhantes

Apartamento
Venda

335.000€

Vende-se Apartamento T4 na Prelada

335.000€

Porto / Porto / Ramalde


Ref: CB16-03 (2)

Ref: CB16-03 (2)

119 m2

4

2

Sim

Apartamento
Venda

395.900€

Oporto Plaza - Apartamento T3 em Paranhos - P...

395.900€

Porto / Porto / Paranhos


Ref: CB05-76 (3)

Ref: CB05-76 (3)

100 m2

3

2

Sim

Apartamento
Venda

220.000€

Apartamento T0 Novo inserido no Edifício Bonf...

220.000€

Porto / Porto / Bonfim


Ref: CB02-168-C

Ref: CB02-168-C

42 m2

1